︎
︎
info
kontakt
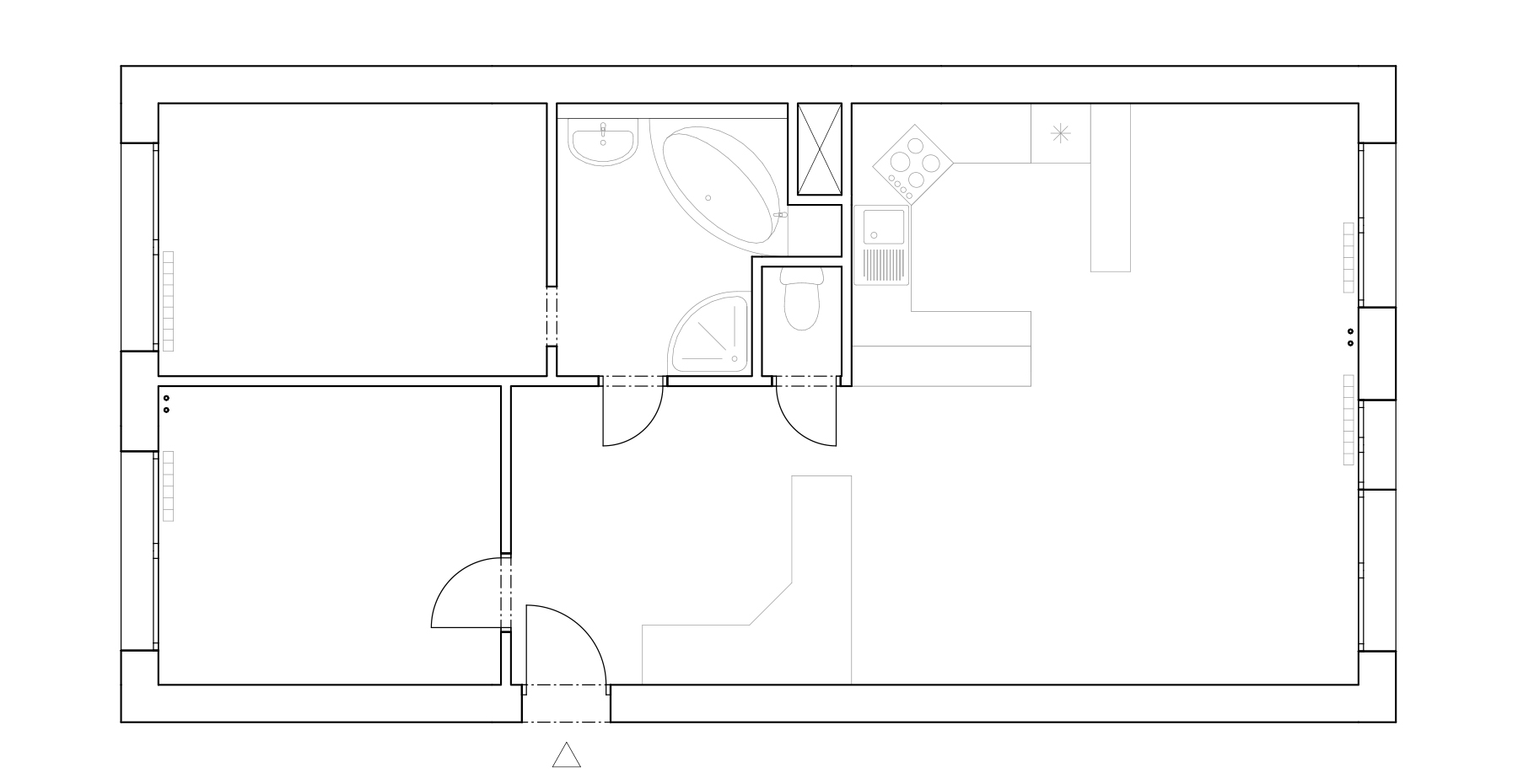
Byt Michle
Klient: soukromý investor
Status: projekt interieru, v realizaci
Datum: 2023
Návrh rekonstrukce panelového bytu.
︎︎︎
© 2018 2D3D
logotype design Petr Štěpán