Byt Újezd
Barevný interiér pro milovníky obrazů.
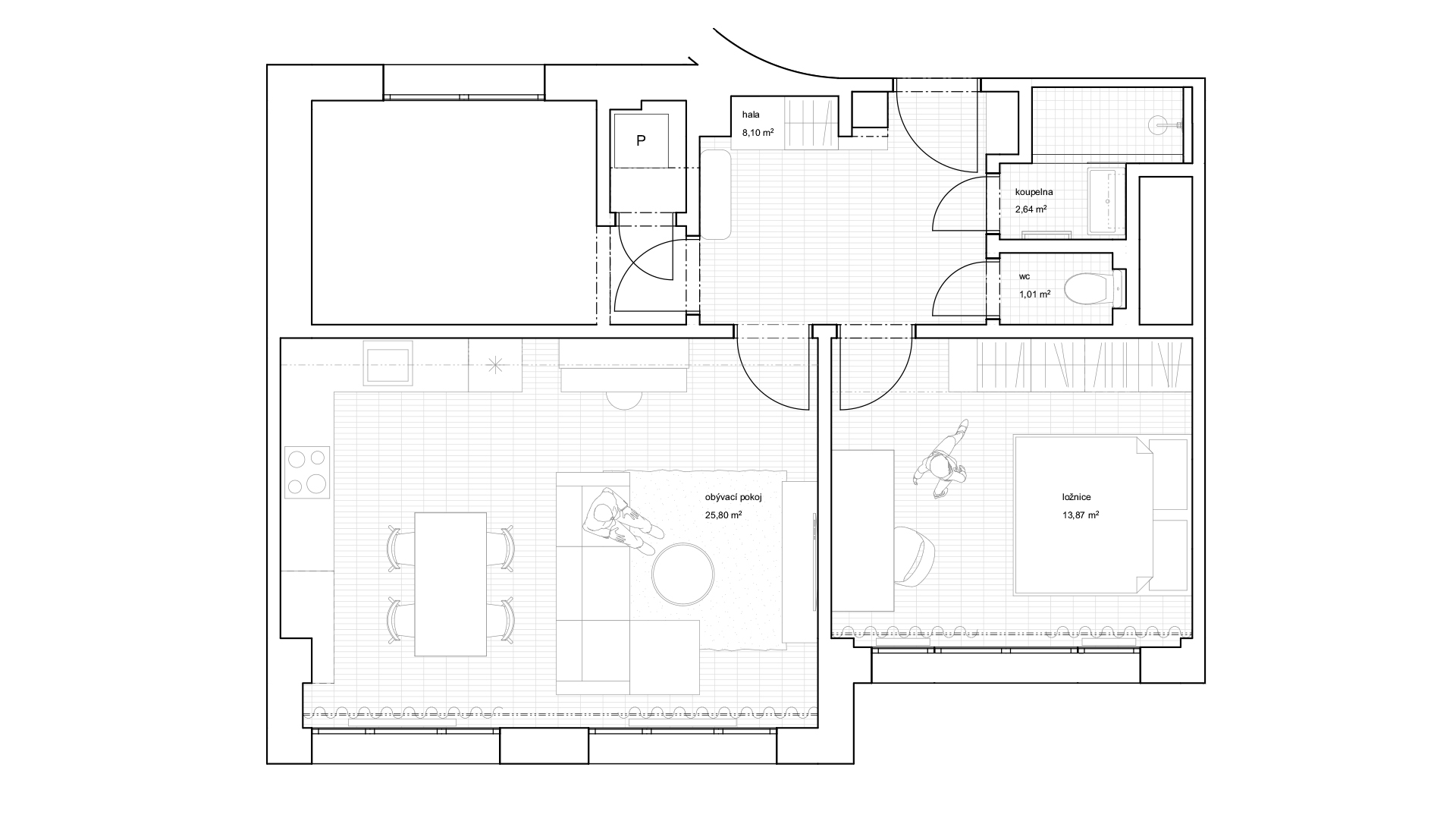
Malý byt v centru Prahy.
Návrh s přáním ponechání stávající červené kuchyně, úložné prostory kam se podíváš.
Klient: soukromý investor
Status: studie, prováděcí dokumentace, v realizaci
Datum: 2021
Barevný interiér pro milovníky obrazů.
Malý byt v centru Prahy.
Návrh s přáním ponechání stávající červené kuchyně, úložné prostory kam se podíváš.
