Byt Valencie
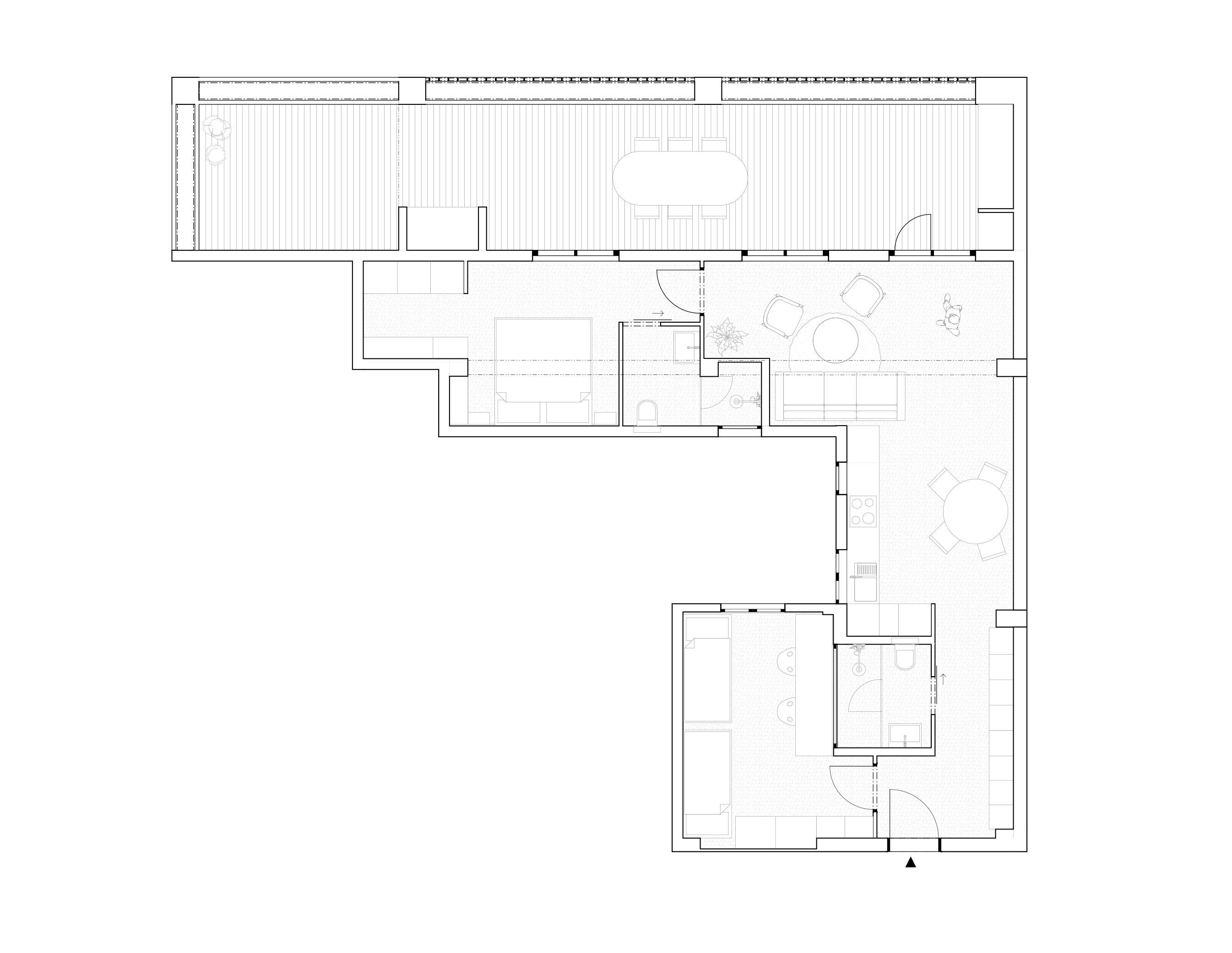
Byt ve staré části města Valencie s velkou terasou.
Typická dispozice místní zástavby - dlouhé chodby s pokoji do světlíku a obytnou částí otevřenou k terase.
Hlavní motivy světlo, jednoduchost a vzdušnost.
Klient: soukromý investor
Status: studie, realizace
Datum: 2020
Byt ve staré části města Valencie s velkou terasou.
Typická dispozice místní zástavby - dlouhé chodby s pokoji do světlíku a obytnou částí otevřenou k terase.
Hlavní motivy světlo, jednoduchost a vzdušnost.
