Mateřská škola Tisová
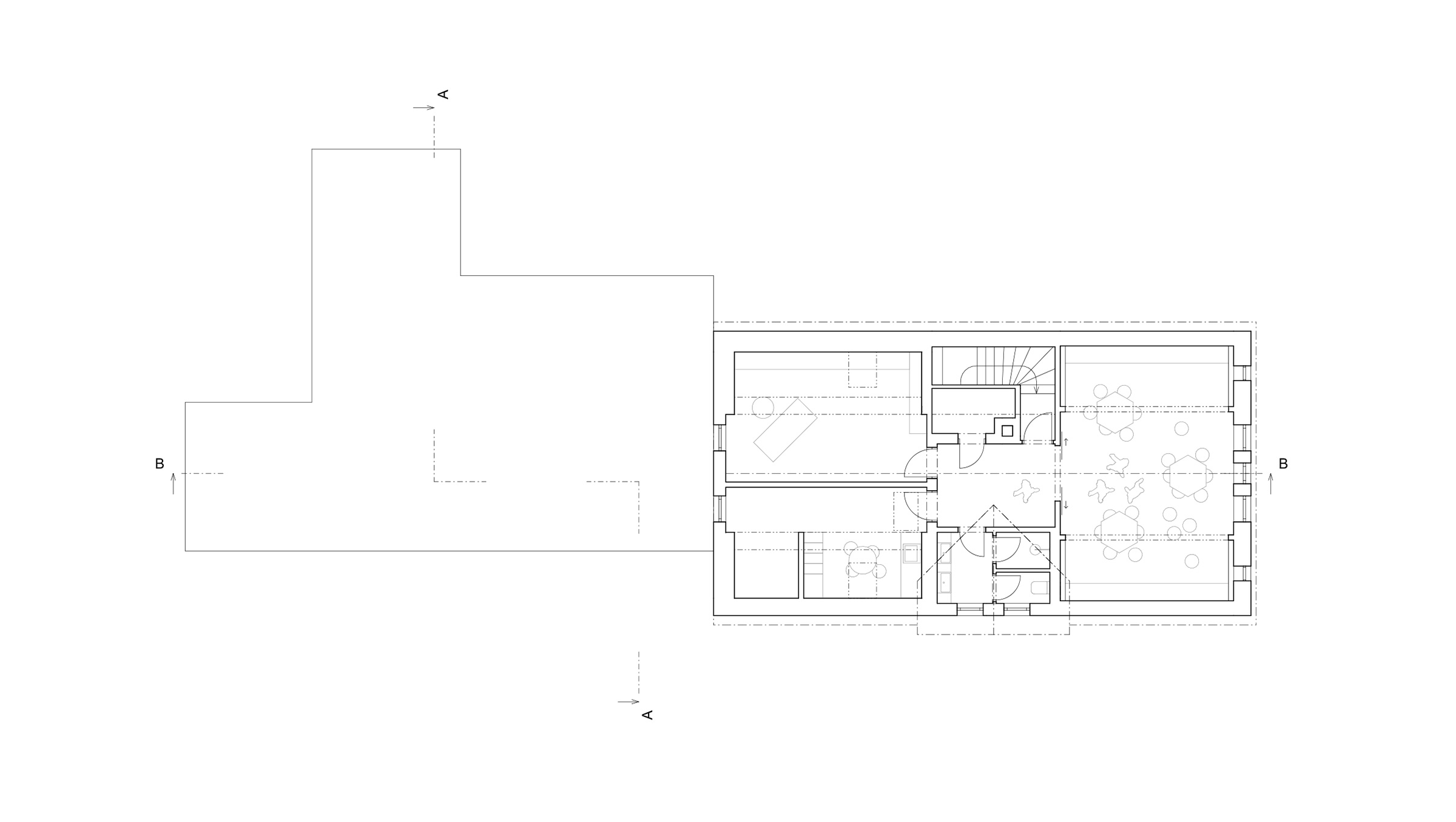
Návrh rekonstrukce stávajícího objektu a nové přístavby mateřské školky.
Řešení nedostatečné velikosti stávajícího objektu pro všechny funkční požadavky.
Ponechání stávajícího mohutného stromu středobodem zahrady.
Odclonění provozu školky od přilehlé komunikace.
Klient: obec Tisová
Status: vyzvaná architektonická soutěž - 1. místo, architektonická studie
Datum: 2024
Spolupráce: písek seyček architekti
Vizualizace: Jiří Klofák
Návrh rekonstrukce stávajícího objektu a nové přístavby mateřské školky.
Řešení nedostatečné velikosti stávajícího objektu pro všechny funkční požadavky.
Ponechání stávajícího mohutného stromu středobodem zahrady.
Odclonění provozu školky od přilehlé komunikace.
