Rekonstrukce domu - Středočeský kraj
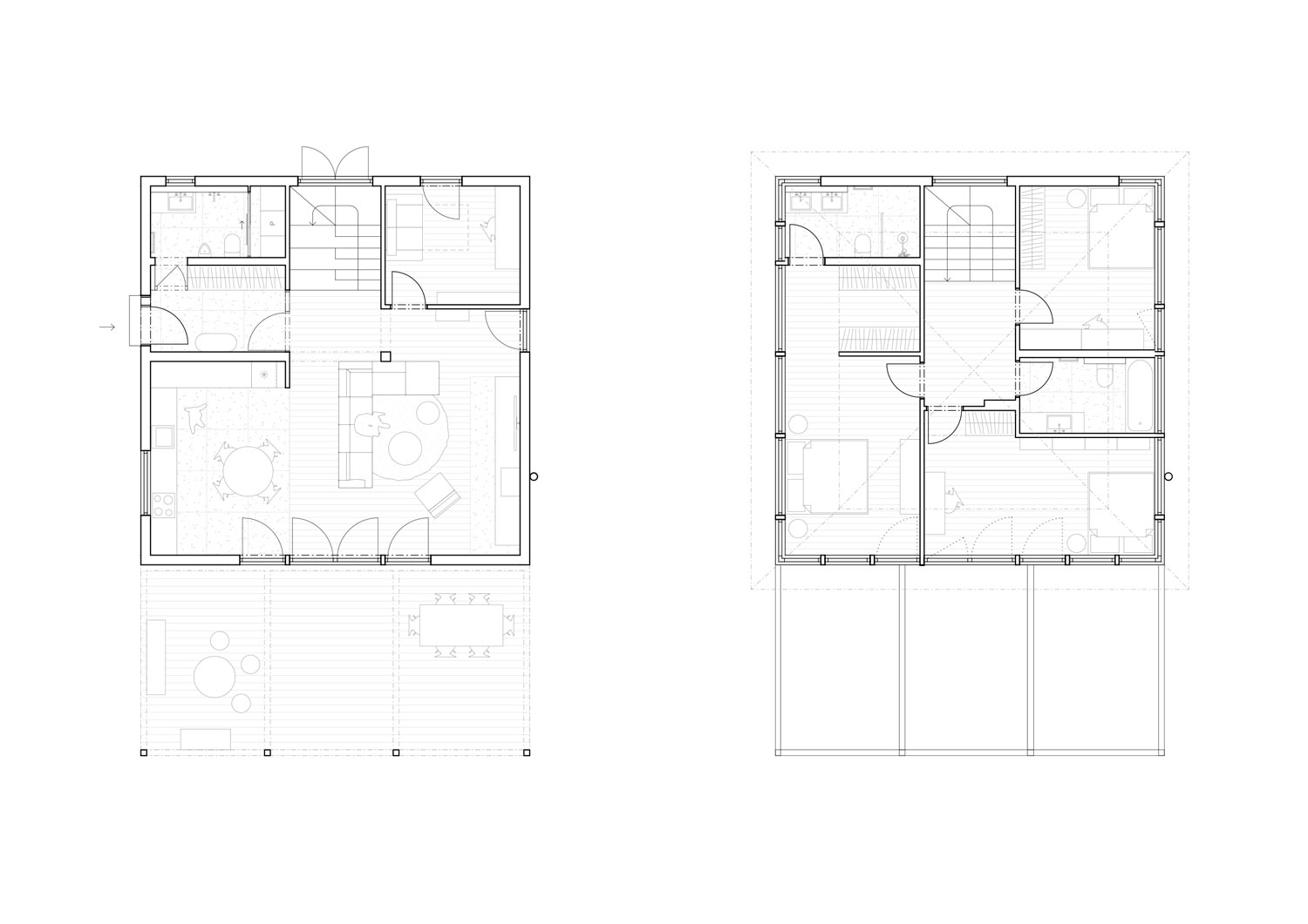
Rekonstrukce, dispoziční úprava a návrh interiéru rodinného domu uprostřed lesů.
Klient: soukromý investor
Status: studie, projekt interiéru, realizace
Datum: 2024
Ve spolupráci s: ta-architektura
Foto: Jiří Ernest
Rekonstrukce, dispoziční úprava a návrh interiéru rodinného domu uprostřed lesů.


















